Ratings
ARRANGE TO VIEW THIS PROPERTY

For Sale Crafted for calm, built for living. in Nicosia, Strovolos Dasoupolis - Strovolos

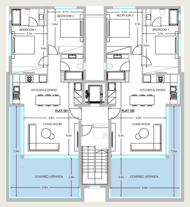
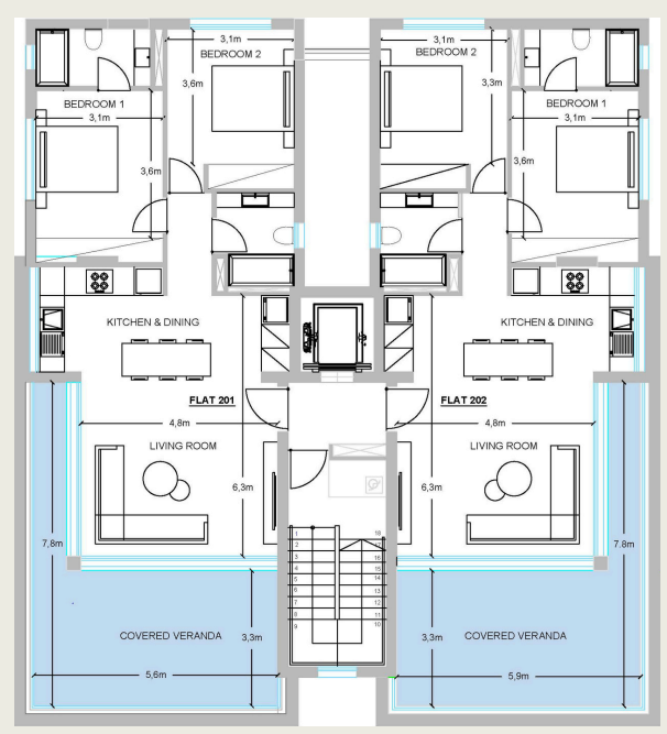
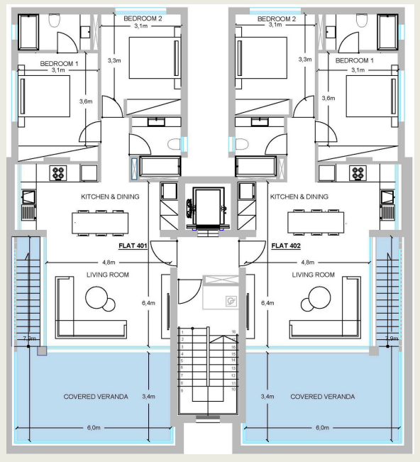
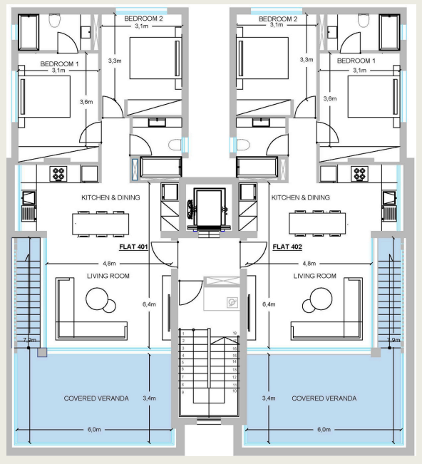
This contemporary residential development introduces eight thoughtfully designed 2‑bedroom apartments, each shaped around the principles of balance, comfort, and functional living. The architecture blends clean, modern expression with efficient spatial planning, creating an elegant urban retreat tailored to today’s lifestyle.
Each typical level features two symmetrically arranged apartments positioned around a central vertical circulation core, ensuring both privacy and intuitive movement. The open‑plan living, dining, and kitchen areas extend toward the façade, seamlessly connecting to deep covered balconies that function as natural extensions of the interior. Bedrooms are placed deeper within the layout to create a calm, secluded environment, while bathrooms and service areas are compactly organised for maximum efficiency.
Generous balcony depths enhance outdoor living while improving shading and thermal comfort throughout the year. At roof level, private terraces and auxiliary spaces elevate the residential offering, providing exclusive outdoor areas with increased privacy, panoramic openness, and the opportunity for personalised outdoor experiences.

Sales Price:
From € 299,000 to € 345,000 + VAT
Listing Type:
Residential
Property Type:
Apartment
Property S/Type:
Standard Apartment
Property Status:
New
Completion Date:
12-01-2027
Living Area:
83m2
Bedrooms:
2
Veranda/Patio:
22m2 - 82m2
Total area:
105m2 - 165m2
WC's:
2

Project Info / Price List

Apartment

Ad#/Sellers Ref BedroomsTotal areaSales Price
20215/A /101 2105 m2€ 299,000 + VAT
20215/B /201 2105 m2€ 309,000 + VAT
20215/C /301 2105 m2€ 316,000 + VAT
20215/D /302 2105 m2€ 312,000 + VAT
20215/E /401+rg 2165 m2€ 345,000 + VAT
20215/F /402+rg 2105 m2€ 339,000 + VAT

Features

Internal

Underfloor heater
Air Conditioned
Clothes Cabinet
Laminated Flooring

Furniture & Appliances

Unfurnished

External

External Shutters


8 Photos
Call Onlineproperties on 22 02 67 02 to view this property
ARRANGE A TIME TO VIEW THIS PROPERTY

Floor Plans

Call Onlineproperties on 22 02 67 02 to view this property
ARRANGE A TIME TO VIEW THIS PROPERTY
Places I've saved(Add/edit places) View nearby schools on map
Location of property is with in displayed area
Call Onlineproperties on 22 02 67 02 to view this property
ARRANGE A TIME TO VIEW THIS PROPERTY
Distance
Address:
Telephone:
Rating:
Website:

Energy Efficiency Certificate

  • Α Certification
  • 0.00 kgCO2/m2/yr
0.09
KWh/m2/yr
0.00
kgCO2/m2/yr
Call Onlineproperties on 22 02 67 02 to view this property
ARRANGE A TIME TO VIEW THIS PROPERTY

Please Login To See Shortlisted Properties

Please Login To See Rated Properties

Please Login To See Notifications

Please Login To See Arranged Viewings