Ratings
ARRANGE TO VIEW THIS PROPERTY

For Sale Where City Energy Meets Home Serenity in Limassol, Mesa Geitonia

This contemporary residential development is designed to meet the evolving needs of modern city living. Nestled in the heart of Kapsalos, Limassol, it redefines convenience, comfort, and design excellence. The project consists of two stylish buildings that house a total of 36 thoughtfully planned apartments, each tailored to offer maximum livability and aesthetic appeal.

Whether you're a professional seeking urban convenience, a couple starting a new chapter, or a family looking for space and serenity, this community offers the perfect balance between city energy and the tranquility of a private home. With an emphasis on intelligent layouts, quality finishes, and a vibrant setting, this is where your future begins.

A wide range of living options is available across the two residential blocks. All units benefit from functional layouts, generous natural light, and private outdoor spaces such as verandas or terraces — thoughtfully designed for comfortable, modern living.



Sales Price:
From € 268,000 to € 690,855 + VAT
Listing Type:
Residential
Property Type:
Apartment
Property S/Type:
Various
Property Status:
New
Completion Date:
01-08-2027
Living Area:
52.45m2 - 106.9m2
Bedrooms:
From 1 - 3
Veranda/Patio:
13.64m2 - 28.95m2
Total area:
66.22m2 - 130.35m2
WC's:
1 - 2

Project Info / Price List

Apartment

Ad#/Sellers Ref BedroomsTotal areaSales Price
18403/A /B404 +RG 2112.05 m2€ 593,865 + VAT
18403/B /B405 +RG 167.09 m2€ 291,841 + VAT
18403/C /B406 +RG 166.22 m2€ 288,057 + VAT
18403/D /A101 172.29 m2€ 292,774 + VAT
18403/E /A102 2102.08 m2€ 408,320 + VAT
18403/F /A103 172.72 m2€ 294,516 + VAT
18403/G /A201 172.29 m2€ 300,003 + VAT
18403/H /A202 2102.08 m2€ 418,528 + VAT
18403/I /A203 172.72 m2€ 301,788 + VAT
18403/J /A301 172.29 m2€ 307,232 + VAT
18403/K /A302 2102.08 m2€ 428,736 + VAT
18403/L /A401 172.29 m2€ 314,461 + VAT
18403/M /A402 2102.08 m2€ 438,944 + VAT
18403/N /A403 172.72 m2€ 316,332 + VAT
18403/O /B101 290.56 m2€ 362,240 + VAT
18403/P /B102 2109.3 m2€ 437,200 + VAT
18403/Q /B103 3130.35 m2€ 521,400 + VAT
18403/R /B104 2112.05 m2€ 448,200 + VAT
18403/S /B105 167.09 m2€ 271,714 + VAT
18403/T /B106 166.22 m2€ 268,191 + VAT
18403/U /B201 290.56 m2€ 371,296 + VAT
18403/V /B202 2109.3 m2€ 534,435 + VAT
18403/W /B203 3130.35 m2€ 534,435 + VAT
18403/X /B204 2112.05 m2€ 459,060 + VAT
18403/Y /B205 167.09 m2€ 278,423 + VAT
18403/Z /B301 290.56 m2€ 380,352 + VAT
18403/AA /B302 2109.3 m2€ 459,000 + VAT
18403/AB /B305 167.09 m2€ 285,132 + VAT
18403/AC /B306 166.22 m2€ 281,435 + VAT
18403/AD /B403 +RG 3130.35 m2€ 690,855 + VAT

Features

Internal

Underfloor heater
Air Conditioned
Clothes Cabinet
Granite Counter Tops
Laminated Flooring
CCTV
Alarm System

Furniture & Appliances

Unfurnished

External

Communal Swimming Pool
BBQ Area
Synthetic Grass
Landscaped Garden
Roof Garden
Auto Irrigation System
Secured Entrance/garage
Fenced/ Walled Perimeter


24 Photos
Call Onlineproperties on 22 02 67 02 to view this property
ARRANGE A TIME TO VIEW THIS PROPERTY

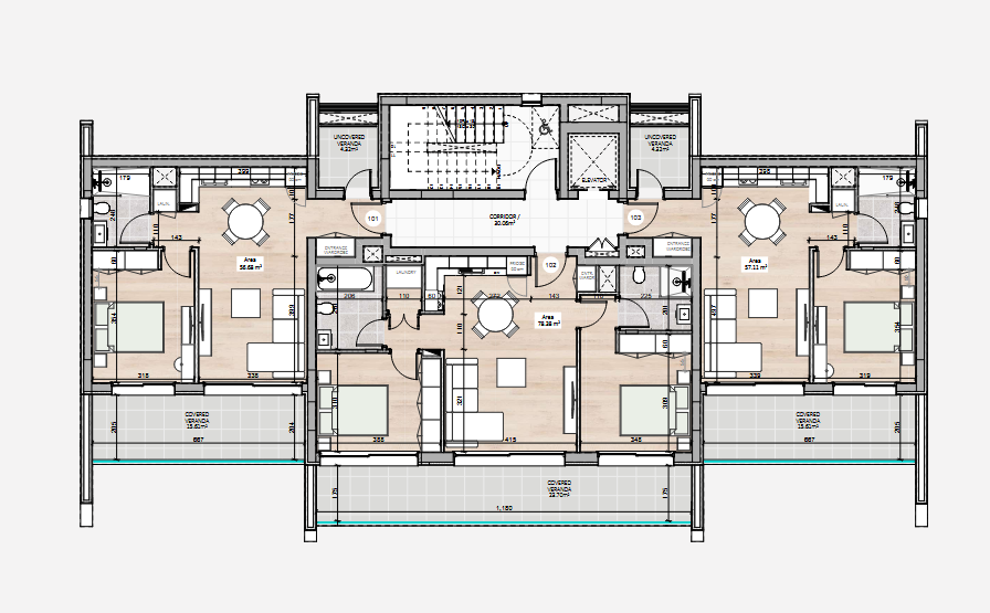
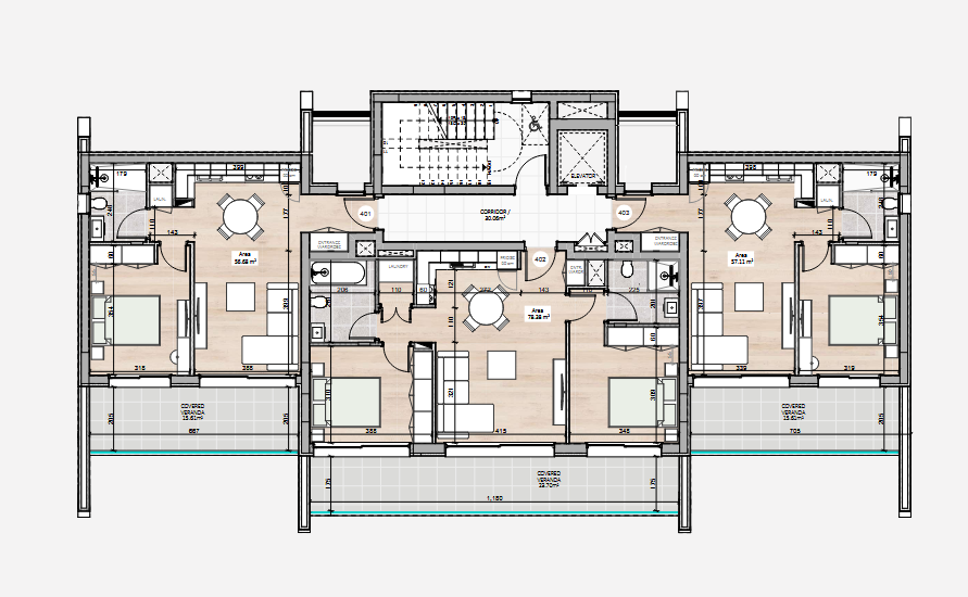
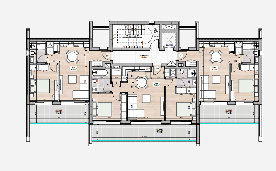
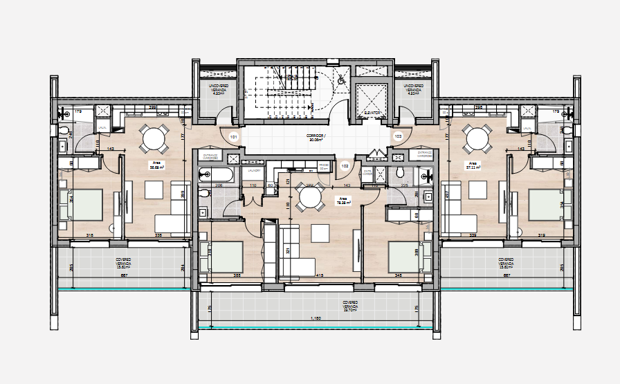
Floor Plans

Call Onlineproperties on 22 02 67 02 to view this property
ARRANGE A TIME TO VIEW THIS PROPERTY
Places I've saved(Add/edit places) View nearby schools on map
Location of property is with in displayed area
Call Onlineproperties on 22 02 67 02 to view this property
ARRANGE A TIME TO VIEW THIS PROPERTY
Distance
Address:
Telephone:
Rating:
Website:

Energy Efficiency Certificate

  • Α Certification
  • 0.05 kgCO2/m2/yr
0.05
KWh/m2/yr
0.05
kgCO2/m2/yr
Call Onlineproperties on 22 02 67 02 to view this property
ARRANGE A TIME TO VIEW THIS PROPERTY

Please Login To See Shortlisted Properties

Please Login To See Rated Properties

Please Login To See Notifications

Please Login To See Arranged Viewings