Ratings
ARRANGE TO VIEW THIS PROPERTY

For Sale New project in quite area , next to a public garden in Larnaca, Larnaca

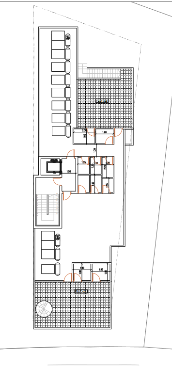
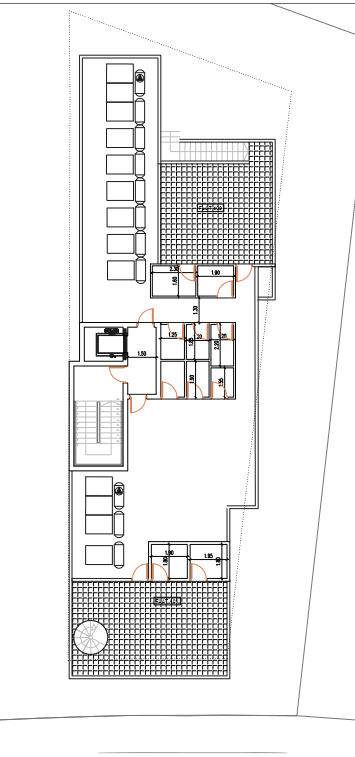
This modern building is located in a very central location near to Metropolis Mall. The project is facing a public garden  and surrounded by restaurants cafes, shops. It s ideal for families wanted a live in the center of the town, having all the local amenities around but still have an upgraded lifestyle in a more quite area. The building comprises of four floors with 10 apartments of one or two bedrooms. Spacious interiors with open plan spaces, master bedroom with en-suites , quest wc, living areas adjusting to lovely verandas and dining areas next to the modern . Large wardrobes, large windows all around the apartments create a bright and airy atmosphere, storage space and parking slot. Top floor apartments  with roof gardens.

There are eight units available with great prices starting at 235.000-360.000 euros plus vat.   
 

Sales Price:
From € 235,000 to € 345,000 + VAT
Listing Type:
Residential
Property Type:
Apartment
Property S/Type:
Standard Apartment
Property Status:
New
Completion Date:
01-12-2026
Living Area:
82m2 - 108.3m2
Bedrooms:
From 2 - 3
Veranda/Patio:
19.9m2 - 63m2
Total area:
102.3m2 - 169m2
WC's:
2 - 3

Project Info / Price List

Apartment

Ad#/Sellers Ref BedroomsTotal areaSales Price
18958/A /301 3145.6 m2€ 270,000 + VAT
18958/B /401RG 3169 m2€ 345,000 + VAT

Features

Internal

Split Units
Air Conditioned
Clothes Cabinet
Granite Counter Tops
Roller Blinds
Led Lights
Tiled Flooring

Furniture & Appliances

Unfurnished

External

Landscaped Garden
Roof Garden
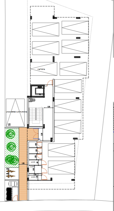
Private Water Supply
Auto Irrigation System


10 Photos
Call Onlineproperties on 22 02 67 02 to view this property
ARRANGE A TIME TO VIEW THIS PROPERTY

Floor Plans

Call Onlineproperties on 22 02 67 02 to view this property
ARRANGE A TIME TO VIEW THIS PROPERTY
Places I've saved(Add/edit places) View nearby schools on map
Location of property is with in displayed area
Call Onlineproperties on 22 02 67 02 to view this property
ARRANGE A TIME TO VIEW THIS PROPERTY
Distance
Address:
Telephone:
Rating:
Website:

Energy Efficiency Certificate

  • Pending Certification

kgCO2/m2/yr
Call Onlineproperties on 22 02 67 02 to view this property
ARRANGE A TIME TO VIEW THIS PROPERTY

Please Login To See Shortlisted Properties

Please Login To See Rated Properties

Please Login To See Notifications

Please Login To See Arranged Viewings