Ratings
ARRANGE TO VIEW THIS PROPERTY

For Sale Contemporary aesthetic villas all set in Famagusta, Ayia Napa Ayia Thekla

A stylish, contemporary aesthetic defines this exclusive collection of luxury residences in Ayia Thekla, Ammochostos, Cyprus. Designed to balance community and privacy, each home offers generous living spaces that ensure comfort and tranquility.
The sparkling white exteriors are accented with wood and light-colored stone paneling, creating a sense of modern elegance that harmonizes beautifully with the white sands and azure waters of the island’s eastern coastline.
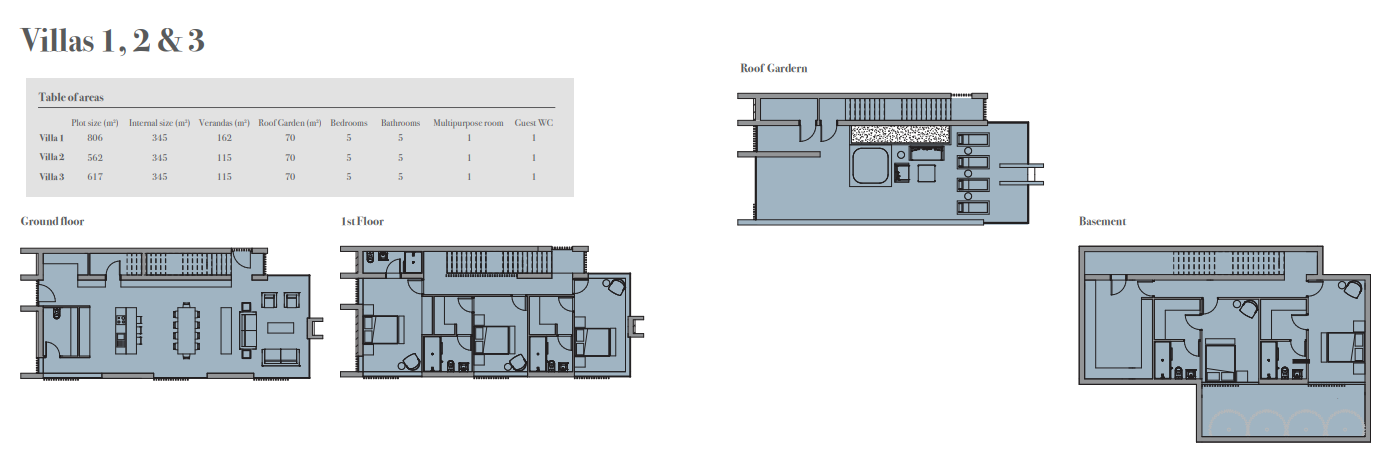
These three-level residences include a basement, ground floor, and first floor, with five bedrooms and five bathrooms. Interiors are thoughtfully arranged to maximize sea views from every angle. Expansive windows and glass railings on the balconies invite natural light while framing uninterrupted vistas of the beach.
Outdoor living is equally captivating. A spacious balcony overlooks the overflow pool and deck area, perfect for private relaxation. A landscaped roof garden provides panoramic views across the horizon, while the sandy shore lies just steps away, offering direct access to the Mediterranean.
Inside, the kitchen is both stylish and functional. Granite countertops, premium Italian fittings, and concealed lighting create a refined workspace that is as practical as it is beautiful. Intuitive layouts ensure convenience, making it an ideal setting for intimate gatherings with family and friends.

Sales Price:
From € 3,200,000 to € 3,650,000 + VAT
Listing Type:
Residential
Property Type:
House
Property S/Type:
Semi Detached
Property Status:
New
Completion Date:
01-04-2027
Living Area:
340m2 - 345m2
Bedrooms:
5
Veranda/Patio:
115m2 - 162m2
Total area:
1022m2 - 1408m2
WC's:
5
Plot Size:
562 - 806

Project Info / Price List

House

Ad#/Sellers Ref BedroomsTotal areaSales Price
17674/A /villa1 pool,rg 5507 m2€ 3,300,000 + VAT
17674/B /villa2 pool,rg 5460 m2€ 3,200,000 + VAT
17674/C /villa3 pool, rg 5460 m2€ 3,650,000 + VAT

Features

Internal

Underfloor heater
Air Conditioned
Granite Counter Tops
Roller Blinds
Vaulted Ceilings
Hidden Lighting
Laminated Flooring
Tiled Flooring
Satellite Dish

Furniture & Appliances

Unfurnished

External

Private Swimming Pool
External Jacuzzi
Decking
BBQ Area
Synthetic Grass
Landscaped Garden
Roof Garden


15 Photos
Call Onlineproperties on 22 02 67 02 to view this property
ARRANGE A TIME TO VIEW THIS PROPERTY

Floor Plans

Call Onlineproperties on 22 02 67 02 to view this property
ARRANGE A TIME TO VIEW THIS PROPERTY
Places I've saved(Add/edit places) View nearby schools on map
Location of property is with in displayed area
Call Onlineproperties on 22 02 67 02 to view this property
ARRANGE A TIME TO VIEW THIS PROPERTY
Distance
Address:
Telephone:
Rating:
Website:

Energy Efficiency Certificate

  • Α Certification
  • 0.50 kgCO2/m2/yr
0.50
KWh/m2/yr
0.50
kgCO2/m2/yr
Call Onlineproperties on 22 02 67 02 to view this property
ARRANGE A TIME TO VIEW THIS PROPERTY

Please Login To See Shortlisted Properties

Please Login To See Rated Properties

Please Login To See Notifications

Please Login To See Arranged Viewings