Ratings
ARRANGE TO VIEW THIS PROPERTY

For Sale Whole floor luxurious apartments with service rooms in Nicosia, Engomi

This luxurious five storey building offers whole floor three beds apartments, four of them have private independent service rooms. Located in a tranquil and exclusive neighborhood, very close to a tennis club, shops, local amenities, government authorities, embassies, schools and major banks. 

The stylish apartments offers three spacious bedrooms, modern living and dining rooms  and beautiful verandas. With under floor heating, ceramic flooring in verandas and bathrooms, LVT flooring in bedrooms, 
electric shutters, master bedroom with en suite and walk in wardrobes, spacious storage room, 2 private parking spots per flat, concealed A/V units in the living room.
Verandas enjoying plenty of sunlight and evening breeze and breathtaking panoramic views of the neighborhood.

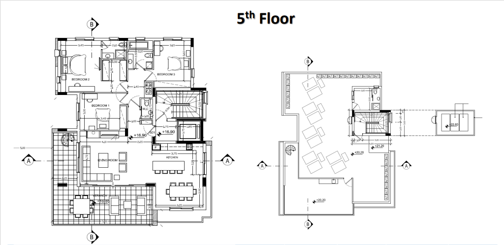
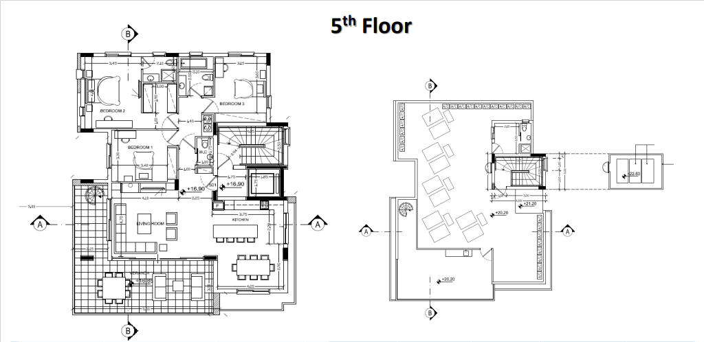
The 5th floor apartment has it s own private roof garden, provision of fire place and private service room.
 
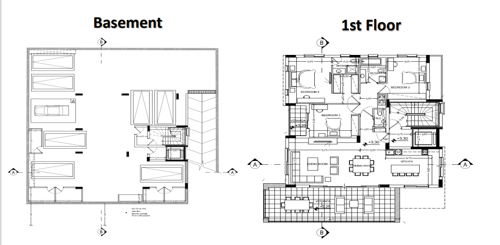
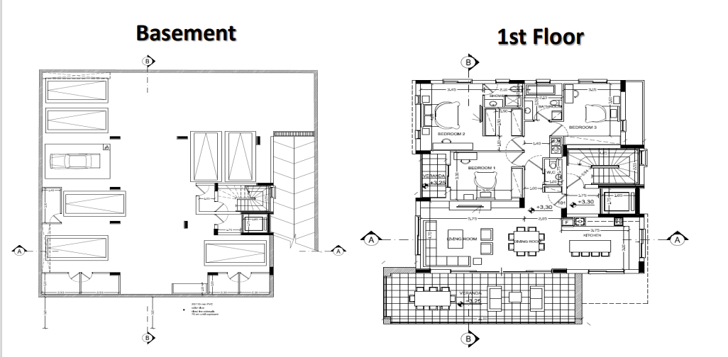
There are three 3bedrooms apartment with private service room, for sale, with living area of 241sq.m. and asking price of €435.000-€490.000 plus vat .
The fifth floor apartment with the roof garden is available for sale with total living area 284sq.m. and asking price of €559.000 plus vat.

 

Sales Price:
From € 435,000 to € 559,000 + VAT
Listing Type:
Residential
Property Type:
Apartment
Property S/Type:
Standard Apartment
Property Status:
New
Date Available:
17-04-2026
Living Area:
136m2 - 137m2
Bedrooms:
3
Veranda/Patio:
39m2 - 83m2
Total area:
175m2 - 219m2
WC's:
3

Project Info / Price List

Apartment

Ad#/Sellers Ref BedroomsTotal areaSales Price
17830/A /201+service room 3175 m2€ 435,000 + VAT
17830/B /301+service room 3175 m2€ 460,000 + VAT
17830/C /401+service room 3176 m2€ 490,000 + VAT
17830/D /501+service room+roof garden 3219 m2€ 559,000 + VAT

Features

Internal

Underfloor heater
Air Conditioned
Clothes Cabinet
Granite Counter Tops
Led Lights
Laminated Flooring
Tiled Flooring

Furniture & Appliances

Unfurnished


4 Photos
Call Onlineproperties on 22 02 67 02 to view this property
ARRANGE A TIME TO VIEW THIS PROPERTY

Floor Plans

Call Onlineproperties on 22 02 67 02 to view this property
ARRANGE A TIME TO VIEW THIS PROPERTY
Places I've saved(Add/edit places) View nearby schools on map
Location of property is with in displayed area
Call Onlineproperties on 22 02 67 02 to view this property
ARRANGE A TIME TO VIEW THIS PROPERTY
Distance
Address:
Telephone:
Rating:
Website:

Energy Efficiency Certificate

  • B Certification
  • 1.00 kgCO2/m2/yr
0.51
KWh/m2/yr
1.00
kgCO2/m2/yr
Call Onlineproperties on 22 02 67 02 to view this property
ARRANGE A TIME TO VIEW THIS PROPERTY

Please Login To See Shortlisted Properties

Please Login To See Rated Properties

Please Login To See Notifications

Please Login To See Arranged Viewings