Ratings
ARRANGE TO VIEW THIS PROPERTY

For Sale Modern spaces for young professionals in Nicosia, Engomi

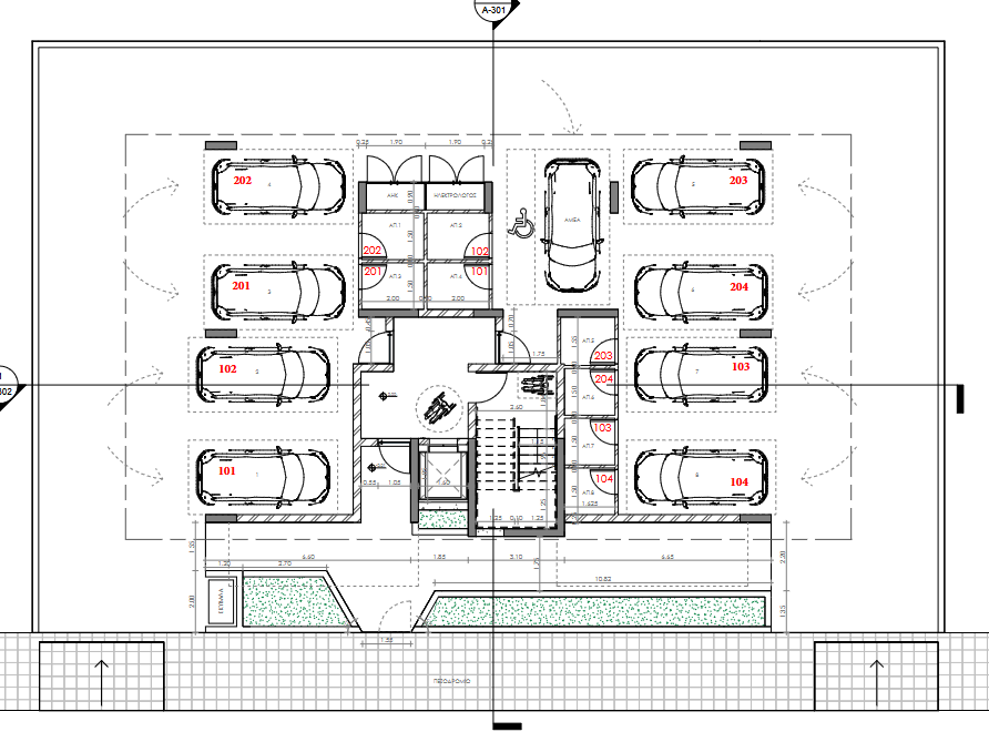
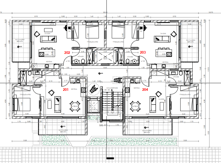
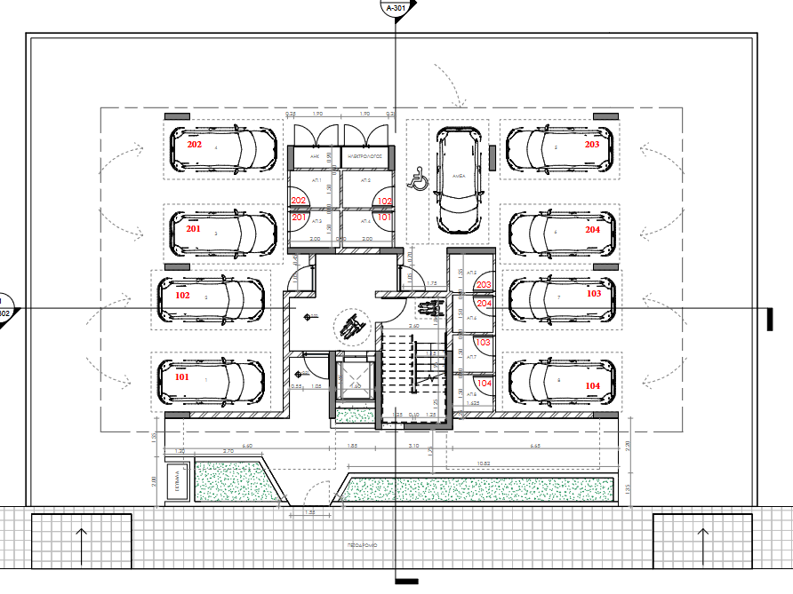
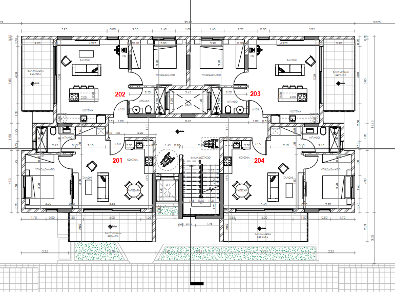
This  modern two -story building features eight  spacious apartments, perfect for young couples, professionals or students  seeking comfort and convenience.
The complex comprises of one -bedroom apartments only. Situated in a quiet residential neighborhood just minutes from a local park and the town center, it offers an ideal blend of tranquility and accessibility. Each apartment boasts of a bright and airy bedroom, with wardrobes, a  stylish bathroom, and open living area that extend onto a  relaxing covered veranda.
 Residents benefit from ample parking and a dedicated storage room on the ground floor for added convenience.

Sales Price:
From € 138,000 to € 150,000 + VAT
Listing Type:
Residential
Property Type:
Apartment
Property S/Type:
Standard Apartment
Property Status:
New
Completion Date:
01-06-2026
Living Area:
53m2
Bedrooms:
1
Veranda/Patio:
12m2 - 13m2
Total area:
65m2 - 66m2
WC's:
1

Project Info / Price List

Apartment

Ad#/Sellers Ref BedroomsTotal areaSales Price
19274/A /101 166 m2€ 145,000 + VAT
19274/B /102 165 m2€ 138,000 + VAT
19274/C /103 165 m2€ 138,000 + VAT
19274/D /104 166 m2€ 145,000 + VAT
19274/E /201 166 m2€ 150,000 + VAT
19274/F /202 165 m2€ 143,000 + VAT
19274/G /203 165 m2€ 143,000 + VAT
19274/H /204 166 m2€ 150,000 + VAT

Features

Internal

Split Units
Air Conditioned
Clothes Cabinet
Granite Counter Tops
Roller Blinds
Led Lights
Tiled Flooring

Furniture & Appliances

Unfurnished

External

Roof Garden
Secured Entrance/garage
External Shutters
Mosquito Screens


4 Photos
Call Onlineproperties on 22 02 67 02 to view this property
ARRANGE A TIME TO VIEW THIS PROPERTY

Floor Plans

Call Onlineproperties on 22 02 67 02 to view this property
ARRANGE A TIME TO VIEW THIS PROPERTY
Places I've saved(Add/edit places) View nearby schools on map
Location of property is with in displayed area
Call Onlineproperties on 22 02 67 02 to view this property
ARRANGE A TIME TO VIEW THIS PROPERTY
Distance
Address:
Telephone:
Rating:
Website:

Energy Efficiency Certificate

  • Pending Certification

kgCO2/m2/yr
Call Onlineproperties on 22 02 67 02 to view this property
ARRANGE A TIME TO VIEW THIS PROPERTY

Please Login To See Shortlisted Properties

Please Login To See Rated Properties

Please Login To See Notifications

Please Login To See Arranged Viewings