Ratings
ARRANGE TO VIEW THIS PROPERTY

For Sale A Home That Takes the Whole Floor. in Nicosia, Engomi Makedonitissa

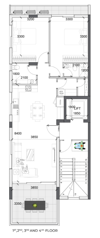
This modern residential building consists of four floor apartments in a four-storey block, offering privacy and comfortable living. Each apartment features two bedrooms, including one en-suite, a spacious covered veranda, storage room, and covered parking at ground level.

Designed with functionality and comfort in mind, all apartments offer bright, spacious, and modern interiors, ideal for contemporary living.

The building is located in the Egkomi district, within a commercial area that provides easy access to a wide range of amenities, including shops, supermarkets, cafés, and universities. The Mall of Egkomi is just 3 minutes away, while Nicosia city centre is only a 15-minute drive.

This is an ideal location for families, young professionals, and students, combining convenience, accessibility, and modern living.


Sales Price:
€ 275,000 + VAT
Listing Type:
Residential
Property Type:
Apartment
Property S/Type:
Whole Floor
Property Status:
New
Completion Date:
01-03-2027
Living Area:
82m2
Bedrooms:
2
Veranda/Patio:
18.5m2
Total area:
100.5m2
WC's:
2

Project Info / Price List

Apartment

Ad#/Sellers Ref BedroomsTotal areaSales Price
19934/A /101 2100.5 m2€ 275,000 + VAT
19934/B /201 2100.5 m2€ 275,000 + VAT
19934/C /301 2100.5 m2€ 275,000 + VAT
19934/D /401 2100.5 m2€ 275,000 + VAT

Features

Internal

Air Conditioned
Clothes Cabinet
CCTV

Furniture & Appliances

Unfurnished

External

Private Water Supply
Auto Irrigation System


5 Photos
Call Onlineproperties on 22 02 67 02 to view this property
ARRANGE A TIME TO VIEW THIS PROPERTY

Floor Plans

Call Onlineproperties on 22 02 67 02 to view this property
ARRANGE A TIME TO VIEW THIS PROPERTY
Places I've saved(Add/edit places) View nearby schools on map
Location of property is with in displayed area
Call Onlineproperties on 22 02 67 02 to view this property
ARRANGE A TIME TO VIEW THIS PROPERTY
Distance
Address:
Telephone:
Rating:
Website:

Energy Efficiency Certificate

  • Α Certification
  • 0.00 kgCO2/m2/yr
0.09
KWh/m2/yr
0.00
kgCO2/m2/yr
Call Onlineproperties on 22 02 67 02 to view this property
ARRANGE A TIME TO VIEW THIS PROPERTY

Please Login To See Shortlisted Properties

Please Login To See Rated Properties

Please Login To See Notifications

Please Login To See Arranged Viewings