Ratings
ARRANGE TO VIEW THIS PROPERTY

For Sale Lovely apartments in central location, ideal for investment in Paphos, Paphos

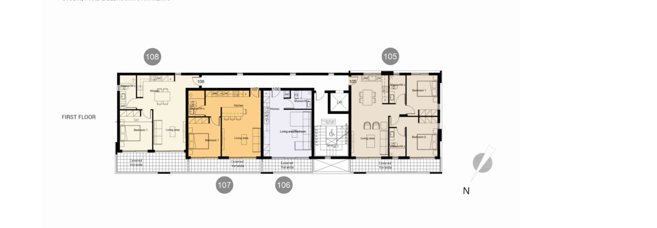
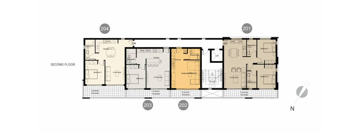
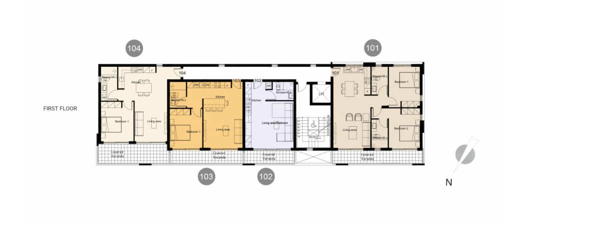
This exciting new project consists of  comfortable modern residences in the city center of Paphos. The project comprises of studios, 1 and 2 bedroom apartments.

The development is in very close proximity to a wide range of shops, restaurants, cafes, and bars while only being a short driving distance away from the Kings Avenue Mall, nearby sandy beaches, and golf resorts such as the Venus Rock Golf Resort and the International School of Paphos. The upcoming American University of Beirut (AUB) and the Cyprus University of Technology will be in very close proximity , making these residences an ideal investment opportunity for rentals.

The contemporary finishes and internal spaces of the apartments will offer all comforts to their future homeowners. Very thoughtful layout, covered verandas, sound and heat insulation, high quality finishes, panoramic windows.

Two apartments ONLY available for sale ,living area ranging between87.45sq.m.- 101.58sq.m. and asking prices start from €200.000- €210.000 plus vat


Sales Price:
From € 200,000 to € 210,000 + VAT
Listing Type:
Residential
Property Type:
Apartment
Property S/Type:
Standard Apartment
Property Status:
New
Date Available:
08-11-2025
Living Area:
101m2 - 112.08m2
Bedrooms:
1
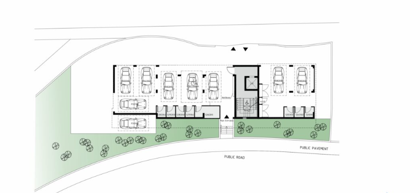
Veranda/Patio:
10m2
Total area:
101.58m2 - 112.08m2
WC's:
1

Project Info / Price List

Apartment

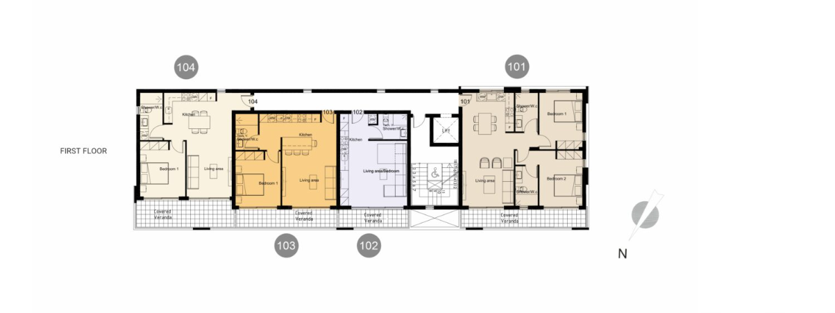
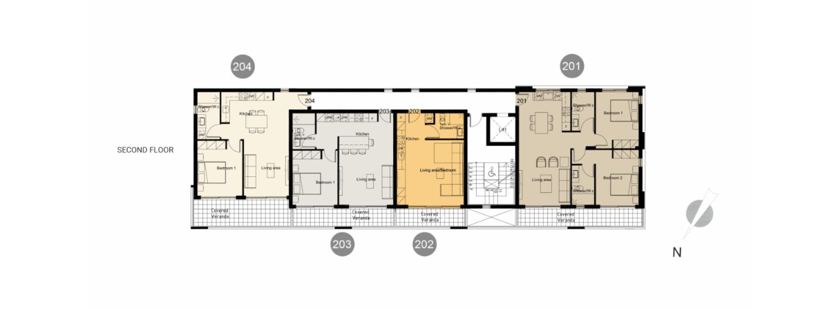
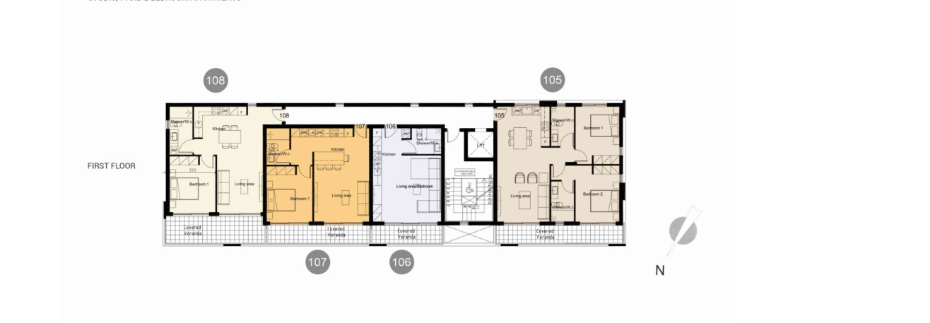
Ad#/Sellers Ref BedroomsTotal areaSales Price
17893/A /CA113 1112.08 m2€ 200,000 + VAT
17893/B /BA208 1101.58 m2€ 210,000 + VAT

Features

Internal

Split Units
Air Conditioned
Granite Counter Tops
Roller Blinds
Laminated Flooring
Tiled Flooring

Furniture & Appliances

Unfurnished

External

Landscaped Garden


17 Photos
Call Onlineproperties on 22 02 67 02 to view this property
ARRANGE A TIME TO VIEW THIS PROPERTY

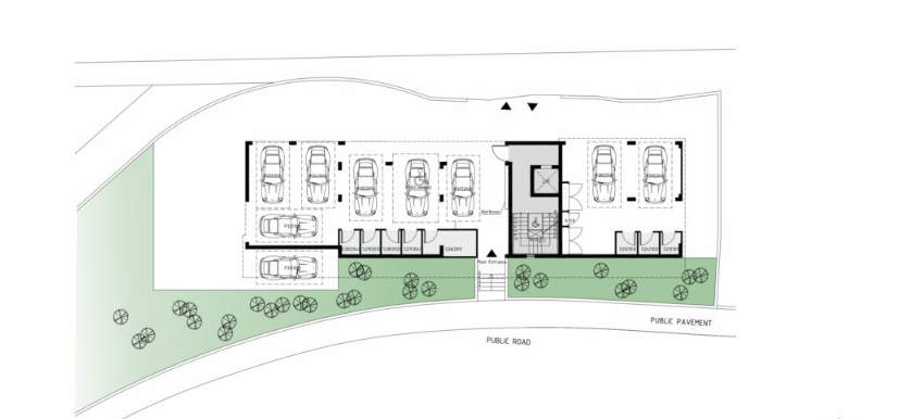
Floor Plans

Call Onlineproperties on 22 02 67 02 to view this property
ARRANGE A TIME TO VIEW THIS PROPERTY
Places I've saved(Add/edit places) View nearby schools on map
Location of property is with in displayed area
Call Onlineproperties on 22 02 67 02 to view this property
ARRANGE A TIME TO VIEW THIS PROPERTY
Distance
Address:
Telephone:
Rating:
Website:

Energy Efficiency Certificate

  • Α Certification
  • 0.05 kgCO2/m2/yr
0.05
KWh/m2/yr
0.05
kgCO2/m2/yr
Call Onlineproperties on 22 02 67 02 to view this property
ARRANGE A TIME TO VIEW THIS PROPERTY

Please Login To See Shortlisted Properties

Please Login To See Rated Properties

Please Login To See Notifications

Please Login To See Arranged Viewings