Ratings
ARRANGE TO VIEW THIS PROPERTY

For Rent Where Every Property Tells a Story in Nicosia, Dali

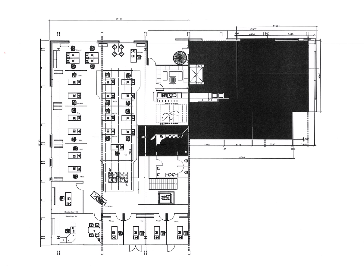
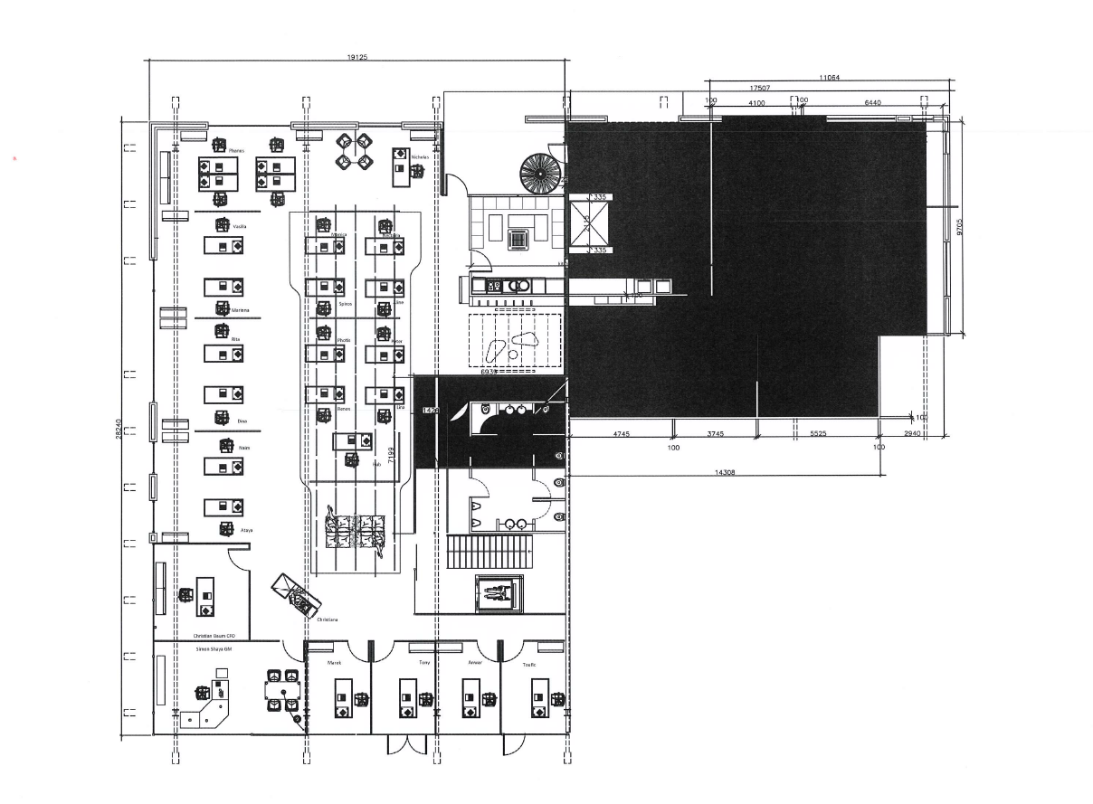
This expansive office space in Dali, Nicosia, offers a remarkable opportunity for your business to grow. Spanning 550 square meters on an entire floor, the office features a secure entrance on the ground floor, a reception area, and a private elevator for easy access. It includes 14 enclosed office rooms but can also be configured as an open-plan workspace. The office is equipped with separate male and female restrooms, a fully fitted kitchen with all necessary appliances, and a large balcony with private stairs leading to the ground floor. Additionally, the property provides ample parking with 25 dedicated spaces.



Rent Price:
€7,800 Per month - €13.22 Per m2 no V.A.T + Communal fees apply extra
Listing Type:
Commercial
Property Type:
Office
Property Status:
Used
Date Available:
12-04-2026
Working Area:
550m2
Total area:
550m2
Veranda/Patio:
40m2
Enclosed Offices:
14
Receptions:
1
Conference Rooms:
1
WC's:
2
Kitchen Type:
Separate
Covered Parking:
5
Uncovered Parking:
20

Features

Internal

VRV Aircon
Air Conditioned
Elevator
Solid Wood Flooring
Marble Flooring

Furniture & Appliances

Unfurnished
Electric Cooker
Refrigerator
Dishwasher
Microwave

External

Secured Entrance/garage
External Shutters


80 Photos
Call Onlineproperties on 22 02 67 02 to view this property
ARRANGE A TIME TO VIEW THIS PROPERTY

Floor Plans

Call Onlineproperties on 22 02 67 02 to view this property
ARRANGE A TIME TO VIEW THIS PROPERTY

360 Virtual Tour

Call Onlineproperties on 22 02 67 02 to view this property
ARRANGE A TIME TO VIEW THIS PROPERTY
Places I've saved(Add/edit places) View nearby schools on map
Location of property is with in displayed area
Call Onlineproperties on 22 02 67 02 to view this property
ARRANGE A TIME TO VIEW THIS PROPERTY
Distance
Address:
Telephone:
Rating:
Website:

Energy Efficiency Certificate

  • Pending Certification

kgCO2/m2/yr
Call Onlineproperties on 22 02 67 02 to view this property
ARRANGE A TIME TO VIEW THIS PROPERTY

Please Login To See Shortlisted Properties

Please Login To See Rated Properties

Please Login To See Notifications

Please Login To See Arranged Viewings